Woonoppervlakte
Circa 113 m²
Perceeloppervlakte
Circa 132 m²
Bouwjaar
Gebouwd in 1971
Aantal kamers
4 kamers (3 slaapkamers)

Heijermanslaan 21

4707 LH, Roosendaal (Noord-Brabant)

Welkom aan de Heijermanslaan 21, een verrassend ruime woning in de geliefde wijk Kroeven in Roosendaal. Hier woon je heerlijk rustig, maar toch dichtbij alle nodige voorzieningen. Supermarkten, winkels en uitvalswegen zijn allemaal in de buurt, gemak en comfort komen hier perfect samen! Binnen tref je een moderne halfopen keuken, een sfeervolle woonkamer met haard, en een heerlijke achtertuin met overkapping en buitenhaard, een plek om het hele jaar door van te genieten! De woning telt twee grote slaapkamers op de eerste verdieping en een riante zolder die eenvoudig om te bouwen is tot derde slaapkamer. Kortom: een instapklare woning met karakter én mogelijkheden. Plan snel die bezichtiging in, misschien is dit jouw nieuwe thuis wel!

Entree
Parkeer je auto gemakkelijk aan de straat en loop via het groen naar de nette voortuin. De entree is verzorgd, met toegang tot de aangebouwde berging, perfect voor je fietsen of extra opslag. Daarnaast is de berging ook een uitstekende plek voor een extra waskamer of kantoor. De berging is namelijk geïsoleerd en verwarmd. Binnen in de hal vind je het toilet, de meterkast, trapopgang en toegang tot de keuken. Een functionele en uitnodigende binnenkomst!

Wonen & Koken
De woonkamer is sfeervol, ruim en heerlijk licht door de grote ramen. De laminaatvloer, spachtelputz wanden en een mooie schouw met haard geven deze ruimte karakter en gezelligheid. De halfopen keuken is modern en stijlvol, uitgevoerd in een zachte groene tint met een houtlook werkblad. Hier kook je op inductie, met alle A-merk inbouwapparatuur die je nodig hebt: koelkast, vriezer en vaatwasser.

Slapen, Dromen & Douchen
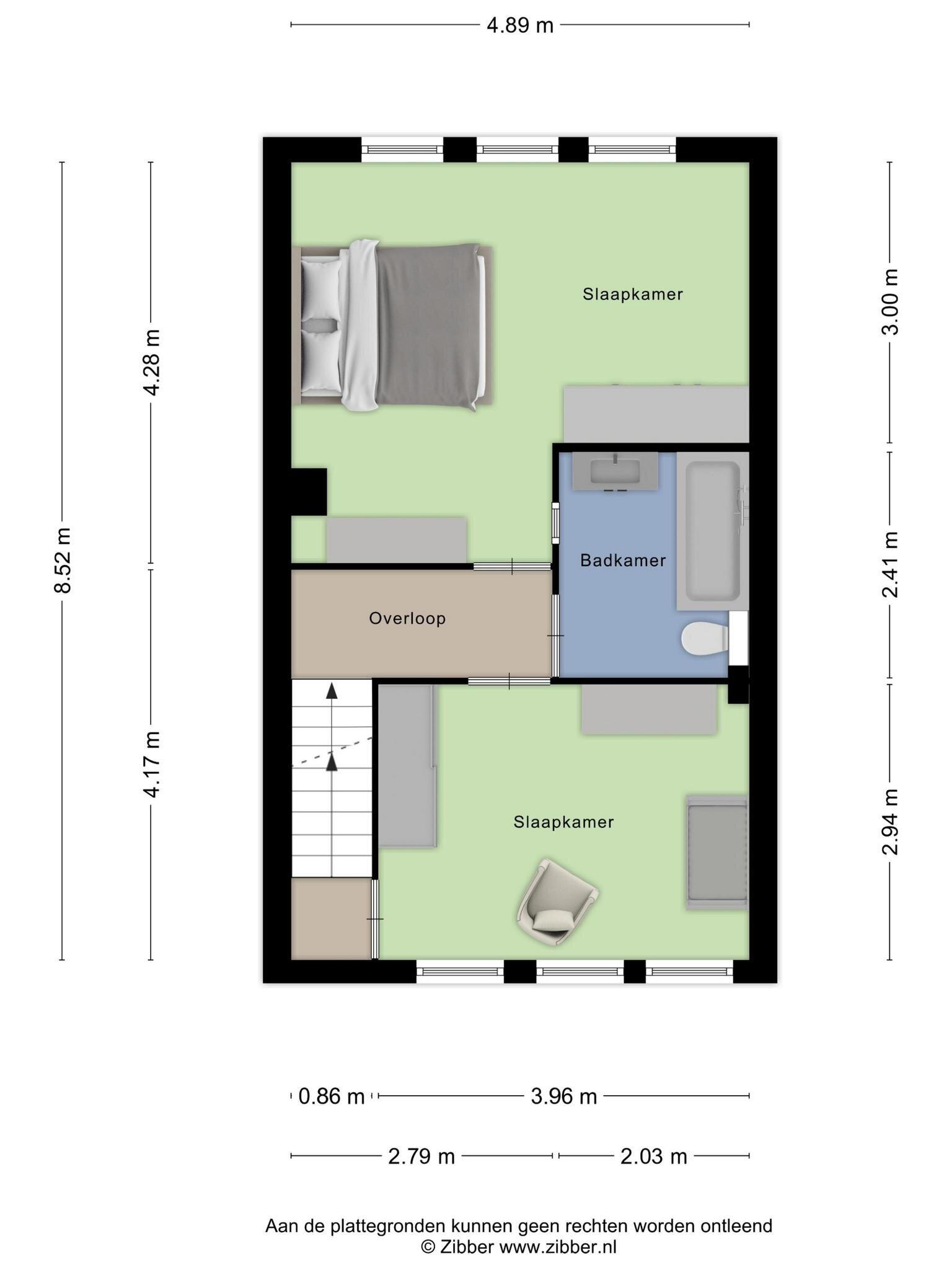
Op de eerste verdieping vind je twee ruime slaapkamers. Beide kamers zijn licht en naar wens in te richten, ideaal als master bedroom, werkkamer of kinderkamer. De trap naar de tweede verdieping bevindt zich in de wat kleinere slaapkamer. De grote master bedroom kan ook opgesplitst worden in de oorspronkelijke twee slaapkamers. Mogelijkheden genoeg in deze woning! De badkamer is keurig onderhouden en voorzien van jacuzzi met douche, wastafelmeubel en tweede toilet. De combinatie van grijze en witte tegels zorgt voor een frisse uitstraling. Een extra fijn pluspunt aan de badkamer is de vloerverwarming, geen koude voeten meer in de ochtend!

Zolderverdieping
De grote zolder met dakkapel is een waardevolle extra. Deze ruimte is ideaal als derde slaapkamer, hobbyruimte of extra opslag. De lichtinval maakt ‘m extra aantrekkelijk! Pluspunt aan deze ruimte is de extra aansluiting voor wasmachine en douche. Zo kan je een extra slaapkamer met douche realiseren op de tweede verdieping.

Tuinieren, Zonnen & Genieten
Wat een pareltje van een tuin! De achtertuin is netjes betegeld, met veel groen, een grasveld, meerdere terrassen en een grote eettafel. Onder de overkapping is een gezellig terras met loungebank en haard – perfect voor lange zomeravonden of knusse herfstmiddagen. Een tuin om verliefd op te worden!

Sfeer en Doelgroep
De woning straalt een gezellige en warme sfeer uit met een modern randje. Dankzij de ruime indeling en praktische opbouw is deze woning ideaal voor jonge gezinnen, doorstromers of levensgenieters die graag willen wonen op een fijne plek met veel licht, ruimte en comfort.

Toelichtingsclausule NEN2580:
De Meetinstructie is gebaseerd op de NEN2580. De Meetinstructie is bedoeld om een meer eenduidige manier van meten toe te passen voor het geven van een indicatie van de gebruiksoppervlakte. De Meetinstructie sluit verschillen in meetuitkomsten niet volledig uit, door bijvoorbeeld interpretatieverschillen, afrondingen of beperkingen bij het uitvoeren van de meting.

Plattegronden

Overdracht

Vraagprijs
€ 315.000 k.k.
Status
Verkocht
Aanvaarding
In overleg

Bouw

Object type
Eengezinswoning, tussenwoning
Soort bouw
Bestaande bouw
Bouwjaar
1971
Soort dak
Zadeldak

Oppervlakte en inhoud

Woonoppervlakte
113 m²
Perceeloppervlakte
132 m²
Inhoud
400 m³
Overige inpandige ruimte
7 m²
Gebouwgeb. buitenruimte
1 m²

Indeling

Aantal kamers
4 kamers (3 slaapkamers)
Aantal badkamers
1 badkamer
Badkamervoorzieningen
Ligbad, toilet, wastafel
Aantal woonlagen
3 woonlagen

Energie

Energielabel
C
Energielabel registratie
29-12-2020
Isolatie
Dakisolatie, vloerisolatie, dubbel glas, hr glas
Verwarming
Cv-ketel
Warm water
Cv-ketel
Cv ketel
Awb thermo elegance gas gestookt uit 2018 (eigendom)

Buitenruimte

Ligging
In woonwijk
Tuin
Achtertuin, voortuin

Bergruimte

Schuur / berging
Aangebouwd steen

Garage

Soort garage
Geen garage

Parkeergelegenheid

Soort parkeergelegenheid
Openbaar parkeren

Energieverbruik in Roosendaal

Energielabel deze woning

Energielabel C

Publicatie energielabel: 29-12-2020

Stroomverbruik per jaar

2790 kWh

(Gemiddelde tussenwoning in Roosendaal)

Gasverbruik per jaar

1080 m³

(Gemiddelde tussenwoning in Roosendaal)

* Cijfers zijn afkomstig van het CBS en bedoeld als indicatie en kunnen verschillen voor deze woning

Indicatie hypotheeklasten

Eigen inleg:
Spaargeld / overwaarde

Rente:
Laagste 10-jaars rente

Laagste 10-jaars rente

2,76% - Centraal Beheer Groen... - NHG


2,98% - Centraal Beheer Groen... - 80%

Laagste 20-jaars rente

3,19% - Centraal Beheer Groen... - NHG


3,31% - Centraal Beheer Groen... - 80%

Laagste 30-jaars rente

3,34% - Centraal Beheer Groen... - NHG


3,47% - Centraal Beheer Groen... - 80%


Hypotheek:

Bruto maandlasten: € 0 p/m

Netto maandlasten: € 0 p/m

Hoe berekenen we dit?

Het rentepercentage is gebaseerd op de laagste 10-jaars vaste rente voor één hypotheekdeel. De vermelde rente (2.76% met NHG) is gecontroleerd op 14-08-2025. Deze berekening is gebaseerd op een annuïteitenhypotheek die volledig wordt afgelost, waarbij de maandlasten gedurende de gehele looptijd gelijk blijven. De werkelijke rente en netto maandlasten kunnen variëren, afhankelijk van uw persoonlijke situatie en de hypotheekverstrekker. Raadpleeg een financieel adviseur voor een nauwkeurige berekening en advies. Aan deze berekening kunnen geen rechten worden ontleend; het dient enkel als indicatie.

Documentatie

Zonnegrenzen bekijken

Op de kaart

Inwoners in Roosendaal

Cijfers voor postcodegebied 4707

Totaal aantal inwoners
16200 inwoners
Mannen
49%
Vrouwen
51%

Inwoners in Roosendaal

Cijfers voor postcodegebied 4707

tot 15 jaar
15%
15 tot 25 jaar
11%
25 tot 35 jaar
21%
45 tot 65 jaar
26%
65 en ouder
26%

Huishoudens in Roosendaal

Cijfers voor postcodegebied 4707

Eenpersoons zonder kinderen
35%
Meerpersoons zonder kinderen
31%
Huishoudens zonder kinderen
66%

Huishoudens in Roosendaal

Cijfers voor postcodegebied 4707

Huishoudens met één kind
9%
Huishoudens met meerdere kinderen
24%
Huishoudens met kinderen
33%

Woningen in Roosendaal

Cijfers voor postcodegebied 4707

Woningen voor 1945
1%
Woningen tussen 1945 en 1965
1%
Woningen tussen 1965 en 1975
53%
Woningen tussen 1975 en 1985
19%
Woningen tussen 1985 en 1995
13%

Woningen in Roosendaal

Cijfers voor postcodegebied 4707

Woningen tussen 1995 en 2005
4%
Woningen tussen 2005 en 2015
9%
Woningen na 2015
1%
Huurwoningen
50%
Koopwoningen
50%

Overige in Roosendaal

Cijfers voor postcodegebied 4707

Gemiddelde WOZ waarde
€ 201.000,-
Personen onder de 65 met uitkering
9%

Overige in Roosendaal

Cijfers voor postcodegebied 4707

Adressen per km²
2025
Stedelijkheid (schaal 1 op 5)
80%
Postcode kaart 4707 Gemeente kaart roosendaal

Korte feiten over Roosendaal

Roosendaal (uitspraakⓘ) is een stad in de Nederlandse provincie Noord-Brabant, en de grootste plaats binnen de gelijknamige gemeente Roosendaal.

Indien u vragen heeft of u wilt een bezichtiging inplannen, dan kunt u gebruik maken van het formulier hiernaast. Er zal daarna op korte termijn contact met u worden opgenomen.

Vakidioten met een passie voor vastgoed

Bij C&R Makelaars draait alles om jou en je woning. Wij zijn een frisse, energieke generatie makelaars met een passie voor mensen en de woningmarkt.

We geloven in een persoonlijke aanpak zonder poespas: eerlijk, transparant en altijd met een flinke dosis enthousiasme. Het verkopen van je huis is een belangrijke stap, en daarom begeleiden we je op een manier die bij jou past, van begin tot eind.

Met onze diepgaande kennis van de lokale markt geven we je waardevol advies dat perfect aansluit bij jouw situatie én dat van potentiële kopers.

Daarnaast staat ons creatieve team van vastgoedmarketeers klaar om jouw woning in de schijnwerpers te zetten. Met slimme en doordachte strategieën zorgen we ervoor dat je huis opvalt en het maximale resultaat behaalt.

Jouw tevredenheid is ons einddoel. We zetten alles op alles om je verwachtingen te overtreffen. Nieuwsgierig naar ons team? Klik op de button hieronder en maak kennis met ons!

Vakidioten met een passie voor vastgoed
Reviews C&R Makelaars

Heijermanslaan 21, Roosendaal

€ 315.000 k.k. - Verkocht

Helaas, deze woning is verkocht!

Net te laat, deze woning is al verkocht. Laat een zoekopdracht bij ons achter zodat wij u direct kunnen helpen wanneer er nieuw aanbod beschikbaar komt.